+

Grund- und Mittelschule Harburg

Machbarkeitsstudie zur Erweiterung der Ganztagsbetreuung einer Grundschule

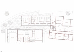
Variante Quader

Variante Quader

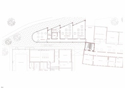
Variante Prisma

Variante Prisma

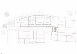
Variante Sägeblatt

Variante Sägeblatt

Projektinfo

Realisierung:

Auftraggeber:

Ort:                    


architekten filutowski schmuck PartG mbB 

2022

Stadt Harburg

Harburg


Diese Website verwendet Cookies. Bitte lesen Sie unsere Datenschutzerklärung für Details.

Ablehnen

OK